Negozio in vendita

Rosta, Via moncenisio - Buttigliera Alta
€ 140.000
7 locali 7 locali
385 Mq 385 Mq
5 bagni 5 bagni

Negozio in vendita

Rosta, Via moncenisio - Buttigliera Alta

Descrizione annuncio

SI PROPONE CONSULENZA PER LA SEGUENTE ASTA IMMOBILIARE CHE VERRA' EFFETTUATA IN DATA 10/10/2025 ALLE ORE15:00:

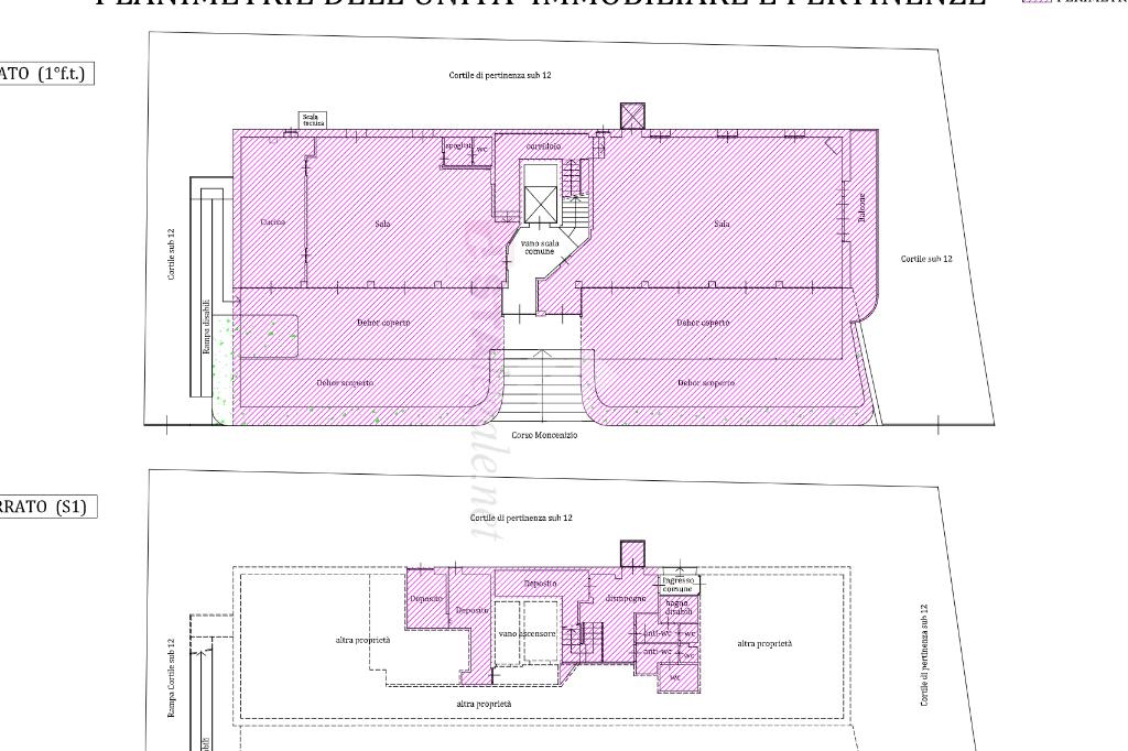
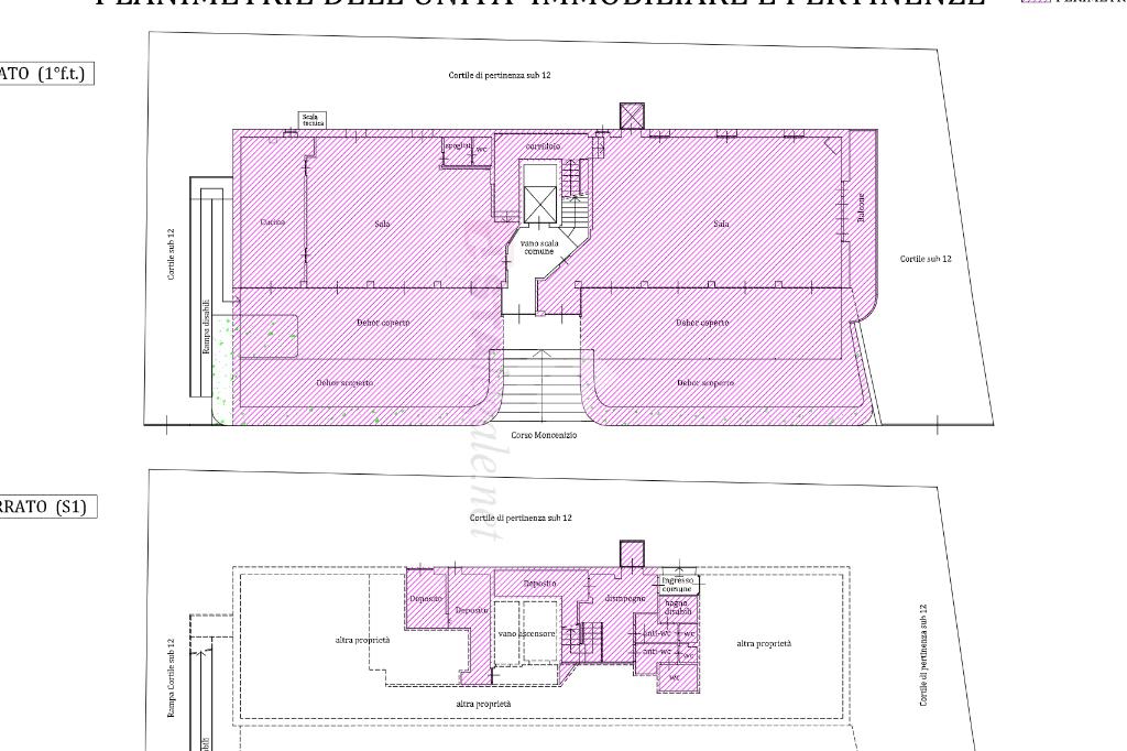
Unità immobiliare ad uso commerciale così composta: Piano Rialzato .t.), con accesso da Corso Moncenisio: cucina, due sale ristorazione, ascensore disabili, spogliatoio del personale, . del personale, scala interna di collegamento al piano seminterrato, balcone e area di pertinenza esterna composta da due dehors esterni in parte coperti, divisi da siepe su muretti di sostegno. Piano Seminterrato ) con accesso dai locali al Piano Rialzato tramite scala interna e dal corti-le di pertinenza del subalterno 12: scala interna al piano terreno, disimpegno, ascensore disabili, due anti-bagno, quattro tre locali deposito di cui uno comunicante con il disimpegno e due con accesso da cortile.

UN TEAM ESPERTO IN CONSULENZA PER ASTE IMMOBILIARI E' A TUA DISPOSIZIONE NEL NOSTRO UFFICIO: TI GUIDIAMO PASSO DOPO PASSO!

Mostra tutto

Nelle vicinanze

Trasporto pubblico Trasporto pubblico
Rosta
Rosta
1,2 Km
Rivoli (Supermercato Calzature)
Rivoli (Supermercato Calzature)
100 m
Rivoli (fraz. Perosa)
Rivoli (fraz. Perosa)
440 m
Ricariche auto elettriche Ricariche auto elettriche
EnelX EVA+ Centro Commerciale Auchan Rivoli
2,2 Km
Scuole Scuole
Scuole
1,8 Km
Scuola Secondaria di primo grado-I.C. "Giacomo Matteotti"
2,8 Km
Farmacia Farmacia
Farmacia Dr. Gavotti
1,8 Km
Farmacia
2,2 Km
Farmacia Comunale
2,8 Km
Negozi Negozi
Boetto
60 m
Boetto Kids
420 m
Facis
500 m
Panetteria
1,6 Km
Mini Market
1,6 Km
Bar Bar
Bar
1,6 Km
Bar dell'Angolo
1,7 Km
Crystal
2,6 Km
Rosa dei Venti
2,7 Km
Snack Bar
2,7 Km
Ristoranti Ristoranti
Ristoranti
0 m
Pizzeria Sporting
970 m
Pizzeria Trattoria
1,2 Km
La Soldanella
1,7 Km
Curandera
1,8 Km
Mostra tutto

Caratteristiche

Rif.:
61091243
Piano:
Terra di 3 con ascensore
Totale piani:
3
Balconi:
1
Condizionamento:
Assente
Ascensore:
Mostra tutto
Prezzo Prezzo
€ 140.000
Rata mutuo Rata mutuo
€ 661 / mese
Spese annue Spese annue
€ 1.800
Proponi il tuo prezzoProponi il tuo prezzo

Classe Energetica

G
G
G
G
G
G
G
G
G
EP globale non rinnovabile:
100.00 kW h/m² anno
EP globale rinnovabile:
100.00 kW h/m² anno
EP invernale del fabbricato:
EP estiva del fabbricato:
Anno di costruzione:
1975
Riscaldamento:
Assente

Ti interessa visionare l'immobile?

Fissa un appuntamento  Fissa un appuntamento

Richiedi informazioni

Clicca su Leggi per aprire l'informativa
* Questi campi sono obbligatori

Calcola il tuo mutuo

Semplice e senza impegno
Anticipo

( % )
Mutuo

( % )

pochi semplici passi

inserisci i tuoi dati
Questionario completato
Grazie per aver richiesto un appuntamento senza impegno con un nostro Consulente del Credito e Assicurativo.

Hai inserito correttamente tutti i dati necessari e a breve riceverai una e-mail con un link da convalidare per inviare i tuoi dati.
Affiliato
Industriale Provincia Torino Ovest Sas
Corso Torino, 85/a 10090 Buttigliera Alta (TO)

Il nostro staff


  • Marco Civelli
    Responsabile

  • Vincenzo Pio D'Eredità
    Affiliato
Corso Torino, 85/a 10090 Buttigliera Alta (TO)
Zona: Buttigliera Alta-Val di Susa-Val Sangone-Valmessa
Mostra su mappa
Orari: 09:00 - 13:00 / 14:00 - 19:00
Affiliato
Industriale Provincia Torino Ovest Sas
Corso Torino, 85/a 10090 Buttigliera Alta (TO)

2025 Tecnocasa Franchising S.p.A. - P. IVA 08365160152 - Via Monte Bianco 60/A 20089 Rozzano (MI). Ogni agenzia ha un proprio titolare ed è autonoma. Privacy policy | Policy utilizzo | Cookie policy