Negozio in vendita

Piossasco, Via torino
€ 228.000
5 locali 5 locali
385 Mq 385 Mq
3 bagni 3 bagni

Negozio in vendita

Piossasco, Via torino

Descrizione annuncio

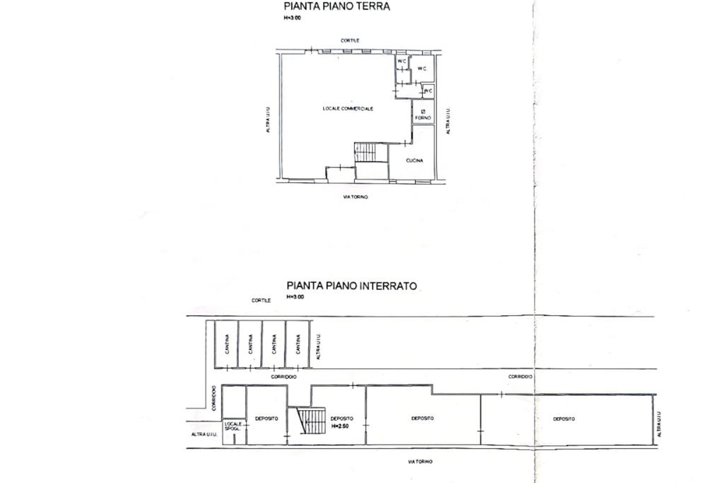
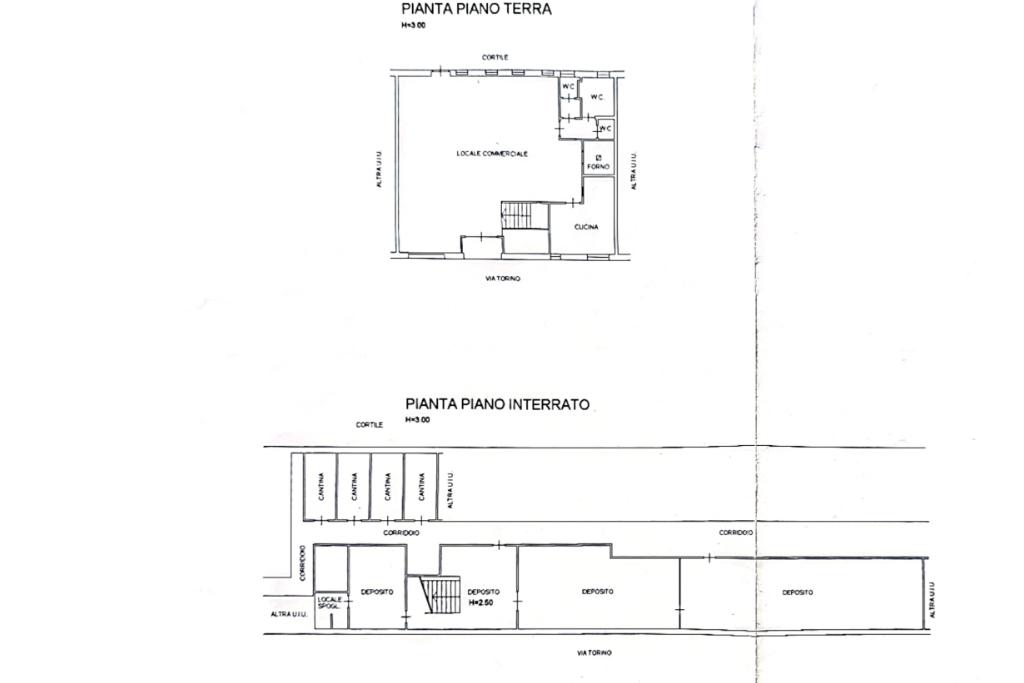
In posizione strategica e di forte visibilitĂ , proponiamo in vendita importante negozio commerciale di complessivi 390 mq, una soluzione difficile da trovare per chi necessita di grandi superfici operative perfettamente integrate.

Il piano terra di 165 mq, valorizzato da quattro vetrine fronte strada, garantisce massima esposizione e luminosità. L’ampio open space, recentemente ristrutturato, si presta a qualsiasi tipo di attività: showroom, vendita al dettaglio, esposizione, servizi al pubblico o attività miste. La distribuzione degli spazi consente una gestione funzionale e ordinata della clientela, affiancata da tre servizi igienici, di cui uno per disabili, oltre a un locale versatile utilizzabile come ufficio, laboratorio o area ristoro.

Il piano seminterrato di 225 mq rappresenta un vero valore aggiunto: un grande spazio multifunzionale, ideale come magazzino, deposito, area logistica o laboratorio, perfettamente collegato al piano superiore. Completa il livello un ufficio dedicato, ideale per la gestione amministrativa e organizzativa dell’attività.

Questa soluzione è pensata per chi cerca ampie metrature, funzionalità e visibilità, elementi fondamentali per attività che necessitano di spazio, organizzazione e presenza sul territorio.
Un’opportunità unica per avviare, trasferire o ampliare un’attività commerciale in una zona ben servita e facilmente accessibile.

Mostra tutto

Nelle vicinanze

Trasporto pubblico Trasporto pubblico
Piossasco (Cascina Garola)
Piossasco (Cascina Garola)
50 m
Rivalta (Tetti Francesi-Allemandi)
Rivalta (Tetti Francesi-Allemandi)
410 m
Ricariche auto elettriche Ricariche auto elettriche
EnelX FAST COOP Piossasco
1,2 Km
Municipio di Piossasco | EnelX
2,4 Km
Piossasco Pellerino | EnelX
2,4 Km
Scuole Scuole
Scuole
1,5 Km
Farmacia Farmacia
Farmacia
1,2 Km
Farmacia Comunale 19
2,6 Km
Farmacia Comunale 23
3,0 Km
Ospedali Ospedali
Casa di cura Villa Serena
2,8 Km
Supermercati Supermercati
Ipercoop
1,2 Km
Supermercati
2,4 Km
Eurospin
2,4 Km
Carrefour
2,9 Km
Negozi Negozi
Facit
2,5 Km
Negozi
2,8 Km
Bar Bar
Bar
1,6 Km
Prabernasca Cafè
2,5 Km
Tabacaffe
3,0 Km
Ristoranti Ristoranti
osteria 68
960 m
Ristoranti
2,0 Km
Il Mulino
2,3 Km
Mensa Ansaldo STS
2,4 Km
Tenuta Canta
2,5 Km
Mostra tutto

Caratteristiche

Rif.:
61120254
Piano:
Terra
Condizionamento:
Predisposizione impianto
Ascensore:
No
Riscaldamento:
Autonomo
Libero:
SĂŹ
Mostra tutto
Prezzo Prezzo
€ 228.000
Rata mutuo Rata mutuo
€ 1.083 / mese
Spese annue Spese annue
€ 0
Proponi il tuo prezzoProponi il tuo prezzo

Classe Energetica

F
F
F
F
F
F
F
F
F
EP globale non rinnovabile:
100.00 kW h/m² anno
EP globale rinnovabile:
100.00 kW h/m² anno
EP invernale del fabbricato:
EP estiva del fabbricato:
Anno di costruzione:
1990
Riscaldamento:
Autonomo
Tipo impianto:
Ad aria
Tipo alimentazione:
Altro

Ti interessa visionare l'immobile?

Fissa un appuntamento  Fissa un appuntamento

Richiedi informazioni

Clicca su Leggi per aprire l'informativa
* Questi campi sono obbligatori

Calcola il tuo mutuo

Semplice e senza impegno
Anticipo

( % )
Mutuo

( % )

pochi semplici passi

inserisci i tuoi dati
Questionario completato
Grazie per aver richiesto un appuntamento senza impegno con un nostro Consulente del Credito e Assicurativo.

Hai inserito correttamente tutti i dati necessari e a breve riceverai una e-mail con un link da convalidare per inviare i tuoi dati.
Affiliato
Industriale Provincia Torino Ovest Sas
Corso Torino, 85/a 10090 Buttigliera Alta (TO)

Il nostro staff


  • Marco Civelli
    Responsabile

  • Vincenzo Pio D'EreditĂ 
    Affiliato
Corso Torino, 85/a 10090 Buttigliera Alta (TO)
Zona: Buttigliera Alta-Val di Susa-Val Sangone-Valmessa
Mostra su mappa
Orari: 09:00 - 13:00 / 14:00 - 19:00
Affiliato
Industriale Provincia Torino Ovest Sas
Corso Torino, 85/a 10090 Buttigliera Alta (TO)

2026 Tecnocasa Franchising S.p.A. - P. IVA 08365160152 - Via Monte Bianco 60/A 20089 Rozzano (MI). Ogni agenzia ha un proprio titolare ed è autonoma. Privacy policy | Policy utilizzo | Cookie policy