Complesso in vendita

Chiomonte, Via Partigiani del Monte Assietta
€ 419.000
10 locali 10 locali
700 Mq 700 Mq
9 bagni 9 bagni

Complesso in vendita

Chiomonte, Via Partigiani del Monte Assietta

Descrizione annuncio

CHIOMONTE - VIA DEI PARTIGIANI DEL MONTE ASSIETTA

In vendita Locanda montana Asietta, situata in una delle piĂš rinomate localitĂ  sciistiche del Piemonte, di fronte agli impianti di risalita nel centro di Chiomonte.

La struttura è cosÏ suddivisa:

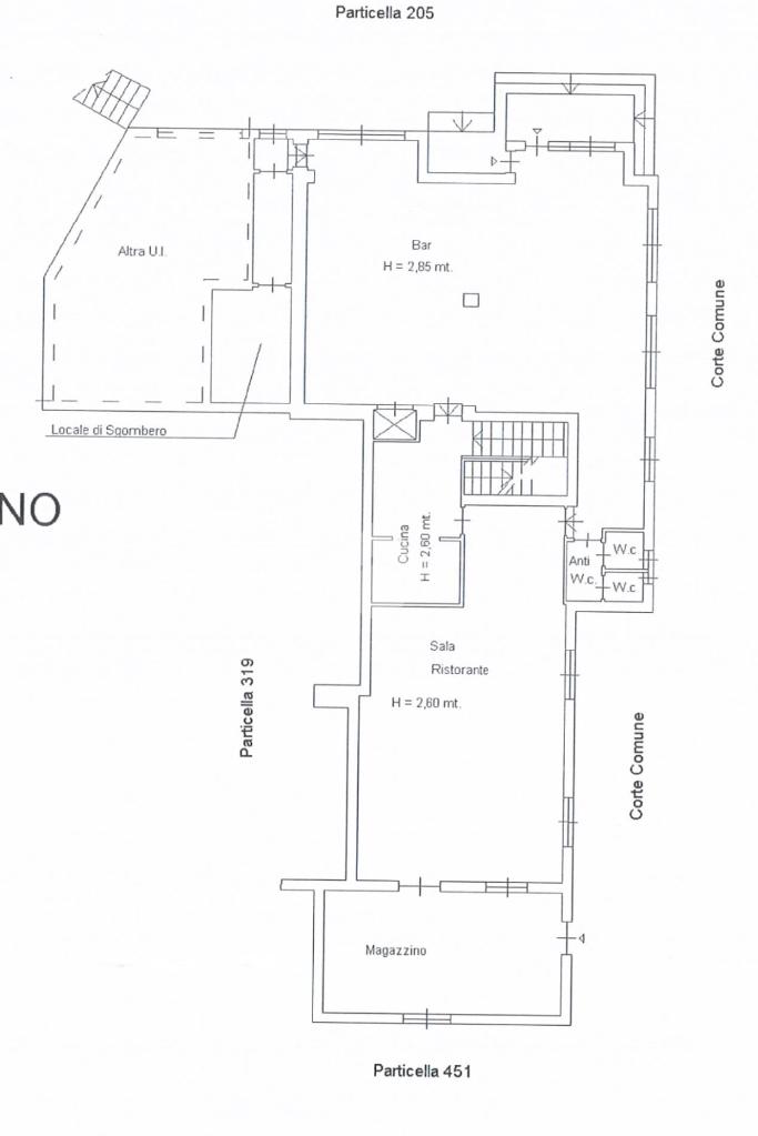
Al piano terreno troviamo l'ampia sala bar, comunicante con le scale che portano ai piani superiori, il bagno munito di doppi servizi igienici, sul retro la cucina e la sala per la colazione ed i pasti.

Al piano primo, raggiungibile sia dalle scale interne situate al piano terreno sia dall'esterno, si trova il ristorante; all'entrata si trova un piccolo bar, sul retro, di fronte alle scale, i servizi igienici di cui un bagno per disabili, proseguendo si accede al luminoso salone ristorante, affacciato sulle piste da sci, dotato di forno a legna e cucina.

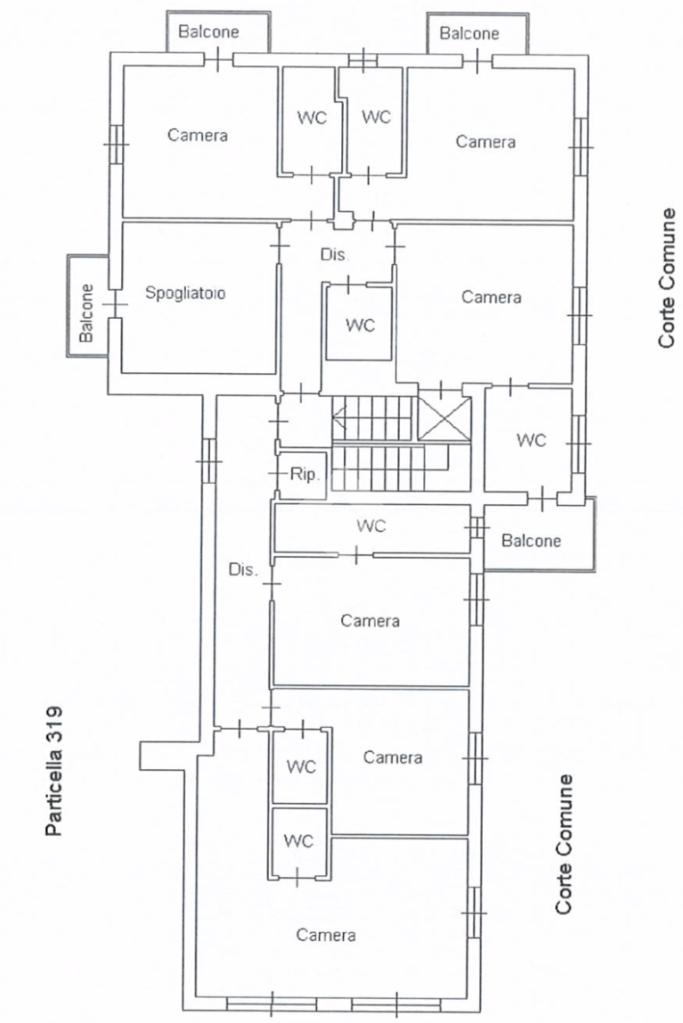
Al piano secondo si trovano le sette camere per gli ospiti, molto luminose, finemente arredate e dotate di bagno privato, sullo stesso piano sono disposti servizi igienici privati ed un disimpegno/sgabuzzino.

Garage privato, con accesso sia dall'esterno esterno che dall'interno e pannelli fotovoltaici in copertura.

Mostra tutto

Nelle vicinanze

Trasporto pubblico Trasporto pubblico
Trasporto pubblico
1,8 Km
stazione di Chiomonte
stazione di Chiomonte
1,8 Km
Chiomonte
Chiomonte
1,9 Km
Farmacia Farmacia
Farmacia
1,9 Km
Ristoranti Ristoranti
Locanda Assietta
10 m
La Capannina
90 m
Albergo Belvedere
190 m
Trattoria La Ramats
2,9 Km
Mostra tutto

Caratteristiche

Rif.:
61073018
Piano:
3 di 3 (Piano su piĂš livelli)
Posti auto:
20
Balconi:
2
Condizionamento:
Assente
Ascensore:
No
Mostra tutto
Prezzo Prezzo
€ 419.000
Rata mutuo Rata mutuo
€ 1.991 / mese
Spese annue Spese annue
€ 0
Proponi il tuo prezzoProponi il tuo prezzo

Classe Energetica

G
G
G
G
G
G
G
G
G
EP invernale del fabbricato:
EP estiva del fabbricato:
Anno di costruzione:
1950
Riscaldamento:
Autonomo
Tipo impianto:
A radiatori
Tipo alimentazione:
Metano

Ti interessa visionare l'immobile?

Fissa un appuntamento  Fissa un appuntamento

Richiedi informazioni

Clicca su Leggi per aprire l'informativa
* Questi campi sono obbligatori

Calcola il tuo mutuo

Semplice e senza impegno
Anticipo

( % )
Mutuo

( % )

pochi semplici passi

inserisci i tuoi dati
Questionario completato
Grazie per aver richiesto un appuntamento senza impegno con un nostro Consulente del Credito e Assicurativo.

Hai inserito correttamente tutti i dati necessari e a breve riceverai una e-mail con un link da convalidare per inviare i tuoi dati.
Affiliato
Industriale Provincia Torino Ovest Sas
Corso Torino, 85/a 10090 Buttigliera Alta (TO)

Il nostro staff


  • Marco Civelli
    Responsabile

  • Vincenzo Pio D'EreditĂ 
    Affiliato
Corso Torino, 85/a 10090 Buttigliera Alta (TO)
Zona: Buttigliera Alta-Val di Susa-Val Sangone-Valmessa
Mostra su mappa
Orari: 09:00 - 13:00 / 14:00 - 19:00
Affiliato
Industriale Provincia Torino Ovest Sas
Corso Torino, 85/a 10090 Buttigliera Alta (TO)

2026 Tecnocasa Franchising S.p.A. - P. IVA 08365160152 - Via Monte Bianco 60/A 20089 Rozzano (MI). Ogni agenzia ha un proprio titolare ed è autonoma. Privacy policy | Policy utilizzo | Cookie policy